There are no reviews

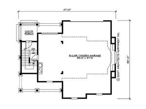
Take a look at this ornate garage apartment plan. If you like Victorian style, this five-car tandem garage with boat storage is sure to get your attention. Stylish porch columns and shuttered windows are just a few of the details highlighting the exterior of this design. The main level (1215 square feet) holds two tandem bays and a single-car bay easily accommodating five vehicles or perhaps a couple of vehicles and a boat. A covered porch points the way to the private interior stairs leading to the second level. Here a large game/living room boasts two bayed windows filling the space with natural light and a cozy fireplace. The step-saver kitchen overlooks the gathering space keeping everyone involved in conversation. A full bath and sunlit bedroom polish off the living spaces. Pay attention to all the attic storage, great for stashing boxes and seasonal items. A masterful blend of fashion and function, this carriage house plan will look great tucked in the backyard behind your Victorian style home.
Heated Square Feet | |
First Floor | 130 |
Second Floor | 695 |
Total | 825 |
Unheated Square Feet | |
Garage | 1215 |
Bedrooms | 1 |
Full Bathrooms | 1 |
Width | 47 ft. 0 in. |
Depth | 38 ft. 0 in. |
Approximate Height | 31 ft. 11 in. |
Ceiling Height | |
First Floor | 8 ft. 5 in. |
Second Floor | 9 ft. 0 in. |
Roof Pitch | 10/12 Main |
Roof Framing |
|
Garage Door Size(s) | 16x8 |
Garage Door Size(s) | 8x8 |
Foundation Options |
|
Exterior Wall Options |
|
Interior Features |
|
Exterior Features |
|
Special Features |
|
Take a look at this ornate garage apartment plan. If you like Victorian style, this five-car tandem garage with boat storage is sure to get your attention. Stylish porch columns and shuttered windows are just a few of the details highlighting the exterior of this design. The main level (1215 square feet) holds two tandem bays and a single-car bay easily accommodating five vehicles or perhaps a couple of vehicles and a boat. A covered porch points the way to the private interior stairs leading to the second level. Here a large game/living room boasts two bayed windows filling the space with natural light and a cozy fireplace. The step-saver kitchen overlooks the gathering space keeping everyone involved in conversation. A full bath and sunlit bedroom polish off the living spaces. Pay attention to all the attic storage, great for stashing boxes and seasonal items. A masterful blend of fashion and function, this carriage house plan will look great tucked in the backyard behind your Victorian style home.
PDF and CAD files are delivered by email, and have no shipping and handling cost.
Continental US | Canada | AK/HI | *International | |
---|---|---|---|---|
Regular 8 - 12 business days | n/a | n/a | n/a | n/a |
Priority 3 - 4 business days | n/a | n/a | n/a | n/a |
Express 1 - 2 business days | n/a | n/a | n/a | n/a |
At The Garage Plan Shop (TGPS), we understand there are many reasons our customers build a garage or an accessory structure. Choosing the right design to accommodate your specific needs is one of the first and most important steps of the journey. We offer one of the largest online collections of garage plans, garage apartment plans, shed plans, outbuilding plans, pool houses and other accessory structures designed by North America’s leading residential designers and architects. The plans published on this website are organized into manageable groups making it easy for our customers to find the style or type of plan they need. Additionally, we offer a variety of features and services to enhance your shopping experience, like our Plan Search tool, a Photo Collection, Current Trends, a Favorites feature, and our Modification Service. Our Resource Section is filled with informational articles to guide our customers through the construction of their new garage or accessory building. Finally, TGPS has a reputation for quality customer service. Our experienced staff has been in the stock plan business and serving the public for over 60 years. We are committed to providing excellent service and an exceptional collection of garage plans and other designs as we help our customers take the first steps toward building a new garage or accessory building.
Are you sure you want to perform this action?