There are no reviews
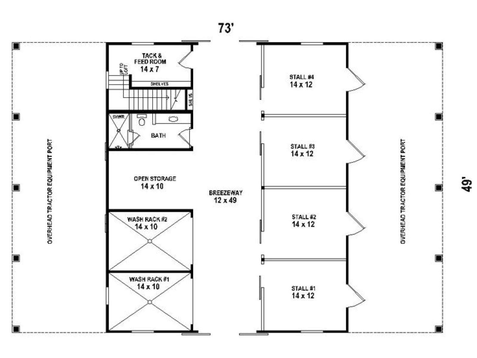
Just right for a farm or ranch with a few horses, this barn plan delivers 10’ ceilings and four horse stalls, each with access to the outdoors and the interior breezeway. Two wash rack areas, a full bath and tack and feed room complete the interior delivering a total enclosed area of 2033 square feet. Pay attention to the two tractor and equipment ports (790 square feet each), perfect for protecting your tractors, horse trailers or other machinery from the elements. The bathroom is the only finished square footage on the main level (102 square feet). Interior stairs lead the way to a practical, unfinished storage loft on the second floor. Complement your farm or ranch with this efficient horse stable plan.
Note: Exterior wall dimensions are rounded to the nearest foot. Contact us for specific measurements.
| Heated Square Feet | |
| First Floor | 102 |
| Total | 102 |
| Unheated Square Feet | |
| Carport/Porte Cochere | 1580 |
| Outbuilding/Barn | 1931 |
| Full Bathrooms | 1 |
| Width | 73 ft. 0 in. |
| Depth | 49 ft. 0 in. |
| Approximate Height | 33 ft. 3 in. |
| Ceiling Height | |
| First Floor | 10 ft. 0 in. |
| Roof Pitch | 8/12 Main |
| Roof Pitch | 3/12 Other |
| Roof Framing |
|
| Foundation Options |
|
| Exterior Wall Options |
|
Just right for a farm or ranch with a few horses, this barn plan delivers 10’ ceilings and four horse stalls, each with access to the outdoors and the interior breezeway. Two wash rack areas, a full bath and tack and feed room complete the interior delivering a total enclosed area of 2033 square feet. Pay attention to the two tractor and equipment ports (790 square feet each), perfect for protecting your tractors, horse trailers or other machinery from the elements. The bathroom is the only finished square footage on the main level (102 square feet). Interior stairs lead the way to a practical, unfinished storage loft on the second floor. Complement your farm or ranch with this efficient horse stable plan.
Note: Exterior wall dimensions are rounded to the nearest foot. Contact us for specific measurements.
PDF and CAD files are delivered by email, and have no shipping and handling cost.
| Continental US | Canada | AK/HI | *International | |
|---|---|---|---|---|
| Regular 8 - 12 business days | $35 | n/a | n/a | n/a |
| Priority 3 - 4 business days | $40 | n/a | $55 | n/a |
| Express 1 - 2 business days | $55 | n/a | n/a | n/a |
At The Garage Plan Shop (TGPS), we understand there are many reasons our customers build a garage or an accessory structure. Choosing the right design to accommodate your specific needs is one of the first and most important steps of the journey. We offer one of the largest online collections of garage plans, garage apartment plans, shed plans, outbuilding plans, pool houses and other accessory structures designed by North America’s leading residential designers and architects. The plans published on this website are organized into manageable groups making it easy for our customers to find the style or type of plan they need. Additionally, we offer a variety of features and services to enhance your shopping experience, like our Plan Search tool, a Photo Collection, Current Trends, a Favorites feature, and our Modification Service. Our Resource Section is filled with informational articles to guide our customers through the construction of their new garage or accessory building. Finally, TGPS has a reputation for quality customer service. Our experienced staff has been in the stock plan business and serving the public for over 60 years. We are committed to providing excellent service and an exceptional collection of garage plans and other designs as we help our customers take the first steps toward building a new garage or accessory building.
Are you sure you want to perform this action?