062H-0707
Reverse All Images
All images are copyrighted by our designers. Photos may reflect modifications made by the builder/homeowner.
Heated Square Feet
First Floor 188
Second Floor 1269
Total 1454
Unheated Square Feet
Deck/Balcony 256
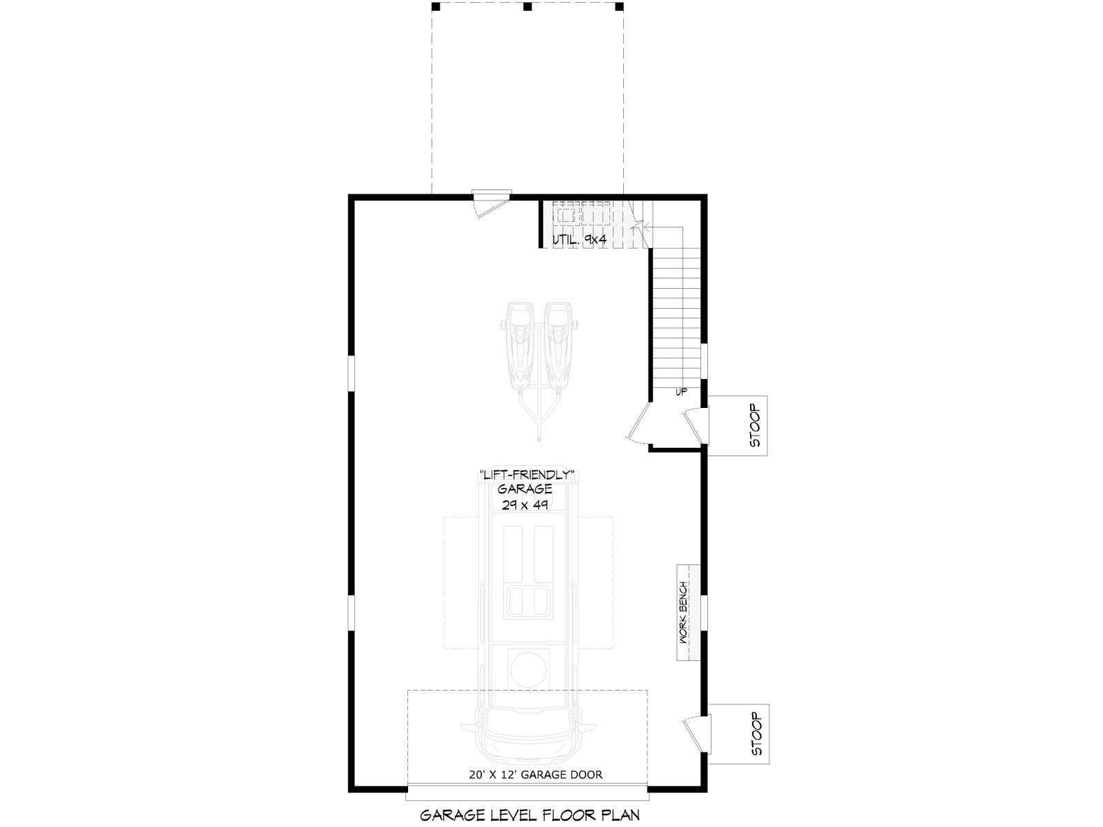
Garage 1312
Bedrooms 2
Full Bathrooms 1
Width 30 ft. 0 in.
Depth 66 ft. 0 in.
Approximate Height 30 ft. 8 in.
Ceiling Height
First Floor 14 ft. 0 in.
Second Floor 6 ft. 5 in.
Roof Pitch 12/12 Primary
Roof Pitch 7/12 Secondary
Roof Framing
  • Truss
Garage Door Size(s) 20x12
Foundation Options
  • Crawl Space
  • Slab
Exterior Wall Options
  • 2x4
  • 2x6
Kitchen Features
  • Eating/Snack bar
  • Island
Exterior Features
  • Deck
Garage Features
  • Apartment Access - Interior Stairs
No description.
Purchased as PDF or CAD file

PDF and CAD files are delivered by email, and have no shipping and handling cost.

Purchased as paper plans
* Scroll right to view table
Continental US Canada AK/HI *International
Regular 8 - 12 business days $25 n/a $55 n/a
Priority 3 - 4 business days $40 n/a $65 n/a
Express 1 - 2 business days $55 n/a n/a n/a
Info

There are no reviews

View more
Add your review

062H-0707 More Plans by
This Designer

Want to modify this plan?

Please submit your requested changes, and our team will email a free modification quote to you within 1 to 3 business days.

Modify this Plan

Starting at

$1,500.00

Additional Options

Complete copy of the construction drawing. Since our blueprints cannot be photocopied, extra sets Complete copy of the construction drawing. Since our blueprints cannot be photocopied, extra sets are available for purchase within 90 days of the original house plan purchase. [less] [more]

A general listing of the quantities and sizes of materials needed for construction of your project. A general listing of the quantities and sizes of materials needed for construction of your project. This tool aids your builder in the estimating process. A material list cannot be sold without the simultaneous or prior purchase of a plan package of the same plan number. NOTE: Material lists only include materials for the base plan offered with the no charge foundation and wall framing options. The materials for alternate wall framing and foundation options available for an extra charge will not be included in the material list. [less] [more]

One-time surcharge for customers wanting to build the structure in reverse. All sets of construction One-time surcharge for customers wanting to build the structure in reverse. All sets of construction drawings in your plan package will come in full reverse essentially flipping the floor plan from left to right with all text, symbols, and notes reading correctly, rather than mirrored. Your order will be fulfilled in right reading reverse format only. The standard format of the construction drawings will not be included with your order. [less] [more]