RV Garage Apartment Plan, 072G-0035

Plan 072G-0035
Reverse All Images
All images are copyrighted by our designers. Photos may reflect modifications made by the builder/homeowner.

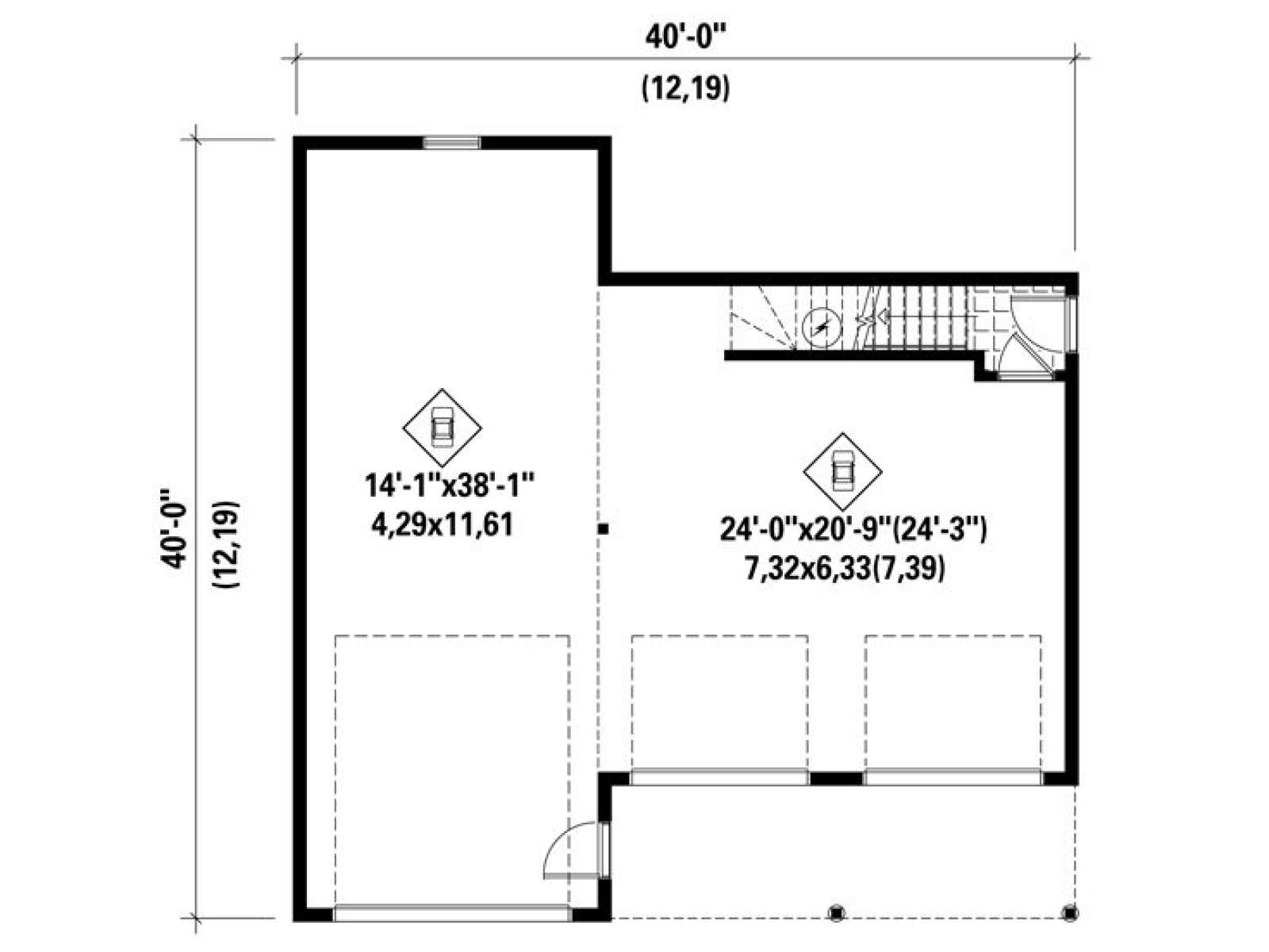
Practical garage apartment plan with RV bay and two-car garage
Thoughtfully designed to serve as your “home base” when you’re not on the road and eliminates the need for a larger home to take care of when you return from your travels
Two-car garage offers parking for your everyday cars
Second floor apartment offers comfortable accommodations when you become a weary traveler and need to rest a home for a while
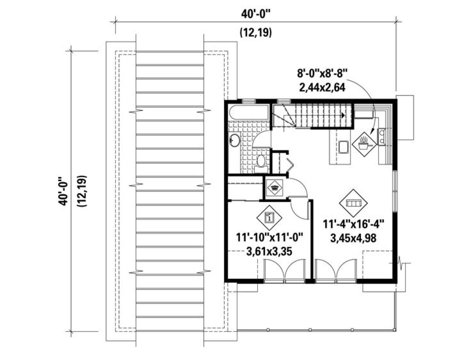
Open floor plan includes a compact kitchen with eating bay, spacious living area, laundry closet, full bath, and comfortable bedroom
Large deck offers a space to grill or just relax outdoors

Heated Square Feet
Second Floor 637
Total 637
Unheated Square Feet
Garage 1264
Bedrooms 1
Full Bathrooms 1
Width 40 ft. 0 in.
Depth 40 ft. 0 in.
Approximate Height 31 ft. 0 in.
Ceiling Height
Second Floor 8 ft. 2 in.
Roof Pitch 12/12 Main
Roof Framing
  • Truss
Garage Door Size(s) 12x14
Garage Door Size(s) 9x7 (2)
Foundation Options
  • Slab
Exterior Wall Options
  • 2x6
Kitchen Features
  • Eating/Snack bar
Interior Features
  • Laundry
  • Open floor plan
Exterior Features
  • Deck

Practical garage apartment plan with RV bay and two-car garage
Thoughtfully designed to serve as your “home base” when you’re not on the road and eliminates the need for a larger home to take care of when you return from your travels
Two-car garage offers parking for your everyday cars
Second floor apartment offers comfortable accommodations when you become a weary traveler and need to rest a home for a while
Open floor plan includes a compact kitchen with eating bay, spacious living area, laundry closet, full bath, and comfortable bedroom
Large deck offers a space to grill or just relax outdoors

Purchased as PDF or CAD file

PDF and CAD files are delivered by email, and have no shipping and handling cost.

Purchased as paper plans
* Scroll right to view table
Continental US Canada AK/HI *International
Regular 8 - 12 business days n/a n/a $100 n/a
Priority 3 - 4 business days $65 $65 n/a n/a
Express 1 - 2 business days n/a n/a n/a n/a
Info

There are no reviews

View more
Add your review

Plan 072G-0035 More Plans by
This Designer

Want to modify this plan?

Please submit your requested changes, and our team will email a free modification quote to you within 1 to 3 business days.

Modify this Plan

Starting at

$775.00

Additional Options

Complete copy of the construction drawings. Since our plans cannot be photocopied, extra sets are Complete copy of the construction drawings. Since our plans cannot be photocopied, extra sets are available for purchase within 90 days of the original purchase. [less] [more]

A general listing of the quantities and sizes of materials needed for construction of your project. A general listing of the quantities and sizes of materials needed for construction of your project. This tool aids your builder in the estimating process. A material list cannot be sold without the simultaneous or prior purchase of a plan package of the same plan number. NOTE: Material lists only include materials for the base plan offered with the no charge foundation and wall framing options. The materials for alternate wall framing and foundation options available for an extra charge will not be included in the material list. [less] [more]

One-time surcharge for customers wanting to build the structure in reverse. All sets of construction One-time surcharge for customers wanting to build the structure in reverse. All sets of construction drawings in your plan package will come in full reverse essentially flipping the floor plan from left to right with all text, symbols, and notes reading correctly, rather than mirrored. Your order will be fulfilled in right reading reverse format only. The standard format of the construction drawings will not be included with your order. [less] [more]