RV Garage with Boat Storage, 062G-0104

Plan 062G-0104
Reverse All Images
All images are copyrighted by our designers. Photos may reflect modifications made by the builder/homeowner.

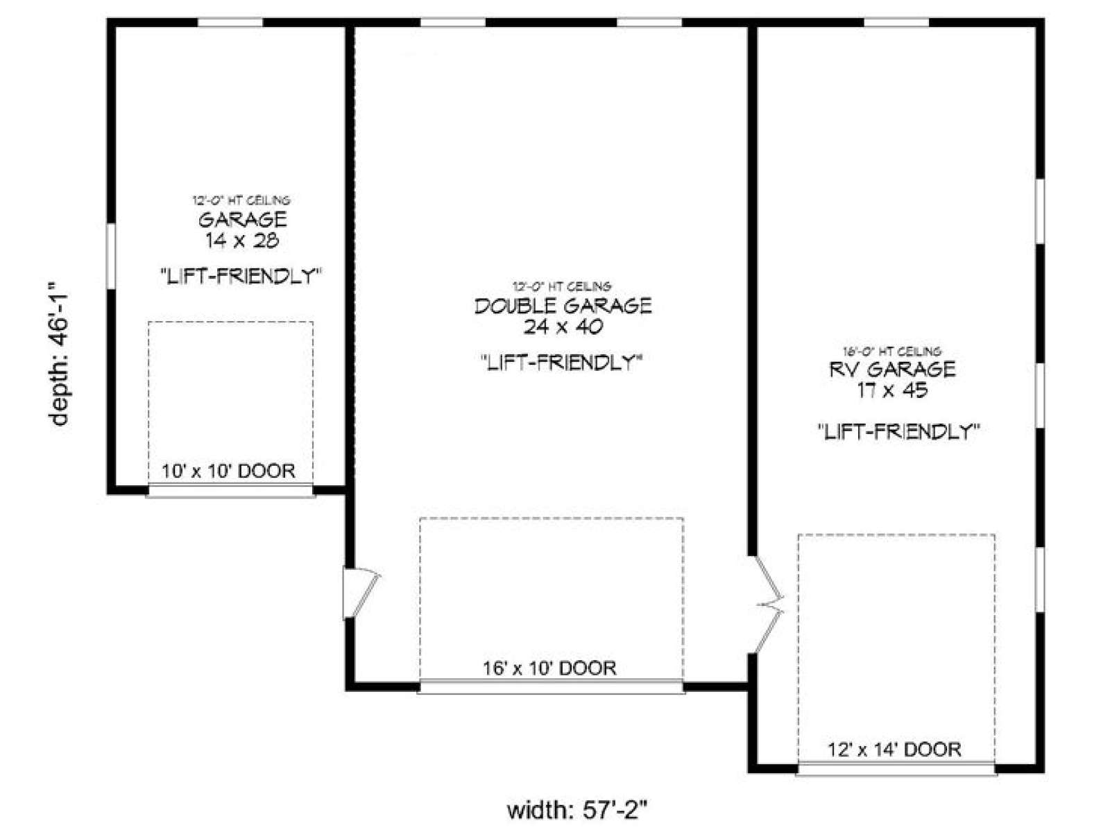
Detached garage plan is lift-friendly and has plenty to offer
All garage bays are well-suited for an auto lift pleasing mechanics and auto enthusiasts
The left bay and the center tandem bay can accommodate boat storage, or they work well for parking standard automobiles
The right bay is designed for RV storage but could also serve as another tandem bay or boat storage garage
Ideal design for car collectors
For a version with a hip roof, see plan 062G-0105

Unheated Square Feet
Garage 2264
Width 57 ft. 2 in.
Depth 46 ft. 1 in.
Approximate Height 19 ft. 9 in.
Ceiling Height
First Floor 12 ft. 0 in.
Roof Pitch 4/12 Main
Roof Framing
  • Stick
Garage Door Size(s) 10x10
Garage Door Size(s) 16x10
Garage Door Size(s) 12x14
Foundation Options
  • Slab
Exterior Wall Options
  • 2x6

Detached garage plan is lift-friendly and has plenty to offer
All garage bays are well-suited for an auto lift pleasing mechanics and auto enthusiasts
The left bay and the center tandem bay can accommodate boat storage, or they work well for parking standard automobiles
The right bay is designed for RV storage but could also serve as another tandem bay or boat storage garage
Ideal design for car collectors
For a version with a hip roof, see plan 062G-0105

Purchased as PDF or CAD file

PDF and CAD files are delivered by email, and have no shipping and handling cost.

Purchased as paper plans
* Scroll right to view table
Continental US Canada AK/HI *International
Regular 8 - 12 business days $25 n/a $55 n/a
Priority 3 - 4 business days $40 n/a $65 n/a
Express 1 - 2 business days $55 n/a n/a n/a
Info

There are no reviews

View more
Add your review

Plan 062G-0104 More Plans by
This Designer

Want to modify this plan?

Please submit your requested changes, and our team will email a free modification quote to you within 1 to 3 business days.

Modify this Plan

Starting at

$1,575.00

Additional Options

Complete copy of the construction drawings. Since our plans cannot be photocopied, extra sets are Complete copy of the construction drawings. Since our plans cannot be photocopied, extra sets are available for purchase within 90 days of the original purchase. [less] [more]

A general listing of the quantities and sizes of materials needed for construction of your project. A general listing of the quantities and sizes of materials needed for construction of your project. This tool aids your builder in the estimating process. A material list cannot be sold without the simultaneous or prior purchase of a plan package of the same plan number. NOTE: Material lists only include materials for the base plan offered with the no charge foundation and wall framing options. The materials for alternate wall framing and foundation options available for an extra charge will not be included in the material list. [less] [more]

One-time surcharge for customers wanting to build the structure in reverse. All sets of construction One-time surcharge for customers wanting to build the structure in reverse. All sets of construction drawings in your plan package will come in full reverse essentially flipping the floor plan from left to right with all text, symbols, and notes reading correctly, rather than mirrored. Your order will be fulfilled in right reading reverse format only. The standard format of the construction drawings will not be included with your order. [less] [more]