Workshop & Studio, 062G-0013

Plan 062G-0013
Reverse All Images
All images are copyrighted by our designers. Photos may reflect modifications made by the builder/homeowner.

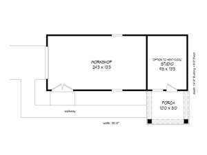
Ideal for the family handyman, woodworkers, crafters and hobbyists, this workshop plan with flexible space has much to offer. The workshop offers 350 square feet of usable space along with 9’ ceilings, an overhead door, and a pair of double doors, all making it convenient workspace. If you prefer, use the workshop for a single-car garage. Now look at the flexible space designed to be a studio. With the option to heat and cool it, the studio could be used as an exercise room, hobby room, sewing room, or whatever you wish.

Unheated Square Feet
Porch(es) 80
Workshop 350
Other 140
Width 35 ft. 0 in.
Depth 22 ft. 0 in.
Approximate Height 13 ft. 10 in.
Ceiling Height
First Floor 9 ft. 0 in.
Roof Pitch 7/12 Main
Roof Framing
  • Stick
Foundation Options
  • Slab
Exterior Wall Options
  • 2x4
  • 2x6
Exterior Features
  • Covered front porch

Ideal for the family handyman, woodworkers, crafters and hobbyists, this workshop plan with flexible space has much to offer. The workshop offers 350 square feet of usable space along with 9’ ceilings, an overhead door, and a pair of double doors, all making it convenient workspace. If you prefer, use the workshop for a single-car garage. Now look at the flexible space designed to be a studio. With the option to heat and cool it, the studio could be used as an exercise room, hobby room, sewing room, or whatever you wish.

Purchased as PDF or CAD file

PDF and CAD files are delivered by email, and have no shipping and handling cost.

Purchased as paper plans
* Scroll right to view table
Continental US Canada AK/HI *International
Regular 8 - 12 business days $25 n/a $55 n/a
Priority 3 - 4 business days $40 n/a $65 n/a
Express 1 - 2 business days $55 n/a n/a n/a
Info

There are no reviews

View more
Add your review

Plan 062G-0013 More Plans by
This Designer

Want to modify this plan?

Please submit your requested changes, and our team will email a free modification quote to you within 1 to 3 business days.

Modify this Plan

Starting at

$775.00

Additional Options

Complete copy of the construction drawings. Since our plans cannot be photocopied, extra sets are Complete copy of the construction drawings. Since our plans cannot be photocopied, extra sets are available for purchase within 90 days of the original purchase. [less] [more]

A general listing of the quantities and sizes of materials needed for construction of your project. A general listing of the quantities and sizes of materials needed for construction of your project. This tool aids your builder in the estimating process. A material list cannot be sold without the simultaneous or prior purchase of a plan package of the same plan number. NOTE: Material lists only include materials for the base plan offered with the no charge foundation and wall framing options. The materials for alternate wall framing and foundation options available for an extra charge will not be included in the material list. [less] [more]

One-time surcharge for customers wanting to build the structure in reverse. All sets of construction One-time surcharge for customers wanting to build the structure in reverse. All sets of construction drawings in your plan package will come in full reverse essentially flipping the floor plan from left to right with all text, symbols, and notes reading correctly, rather than mirrored. Your order will be fulfilled in right reading reverse format only. The standard format of the construction drawings will not be included with your order. [less] [more]