Barn Plan with Apartment, 062B-0032

Plan 062B-0032
Reverse All Images
All images are copyrighted by our designers. Photos may reflect modifications made by the builder/homeowner.

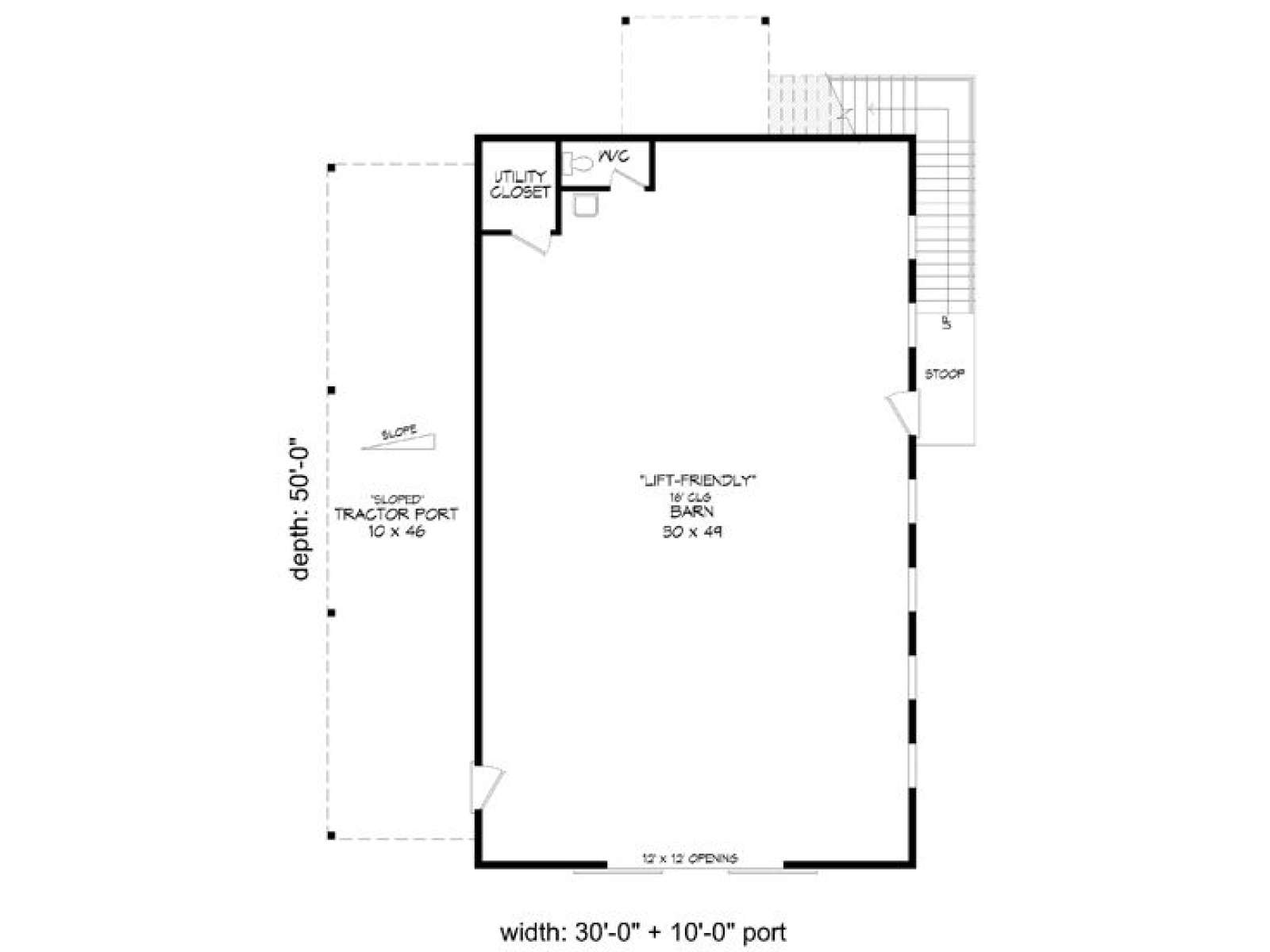
Listed overall dimensions do not include the stairs or rear deck
Second floor ceiling slopes up from 5’-6” to 9’
See similar plan 062B-0031

Heated Square Feet
Second Floor 1155
Total 1155
Unheated Square Feet
Carport/Porte Cochere 460
Deck/Balcony 80
Outbuilding/Barn 1500
Bedrooms 2
Full Bathrooms 2
Half Bathrooms 1
Width 40 ft. 0 in.
Depth 50 ft. 0 in.
Approximate Height 32 ft. 10 in.
Ceiling Height
First Floor 16 ft. 0 in.
Roof Pitch 10/12 Main
Roof Pitch 5/12 Other
Roof Framing
  • Stick
Foundation Options
  • Slab
Exterior Wall Options
  • 2x6
Kitchen Features
    • Island
    • Eating/Snack bar
Bedroom Features
  • Walk-in closet
Interior Features
  • Open floor plan
  • Laundry
Exterior Features
  • Deck

Listed overall dimensions do not include the stairs or rear deck
Second floor ceiling slopes up from 5’-6” to 9’
See similar plan 062B-0031

Purchased as PDF or CAD file

PDF and CAD files are delivered by email, and have no shipping and handling cost.

Purchased as paper plans
* Scroll right to view table
Continental US Canada AK/HI *International
Regular 8 - 12 business days $25 n/a $55 n/a
Priority 3 - 4 business days $40 n/a $65 n/a
Express 1 - 2 business days $55 n/a n/a n/a
Info

There are no reviews

View more
Add your review

Plan 062B-0032 More Plans by
This Designer

Want to modify this plan?

Please submit your requested changes, and our team will email a free modification quote to you within 1 to 3 business days.

Modify this Plan

Starting at

$1,050.00

Additional Options

Complete copy of the construction drawings. Since our plans cannot be photocopied, extra sets are Complete copy of the construction drawings. Since our plans cannot be photocopied, extra sets are available for purchase within 90 days of the original purchase. [less] [more]

A general listing of the quantities and sizes of materials needed for construction of your project. A general listing of the quantities and sizes of materials needed for construction of your project. This tool aids your builder in the estimating process. A material list cannot be sold without the simultaneous or prior purchase of a plan package of the same plan number. NOTE: Material lists only include materials for the base plan offered with the no charge foundation and wall framing options. The materials for alternate wall framing and foundation options available for an extra charge will not be included in the material list. [less] [more]

One-time surcharge for customers wanting to build the structure in reverse. All sets of construction One-time surcharge for customers wanting to build the structure in reverse. All sets of construction drawings in your plan package will come in full reverse essentially flipping the floor plan from left to right with all text, symbols, and notes reading correctly, rather than mirrored. Your order will be fulfilled in right reading reverse format only. The standard format of the construction drawings will not be included with your order. [less] [more]