There are no reviews
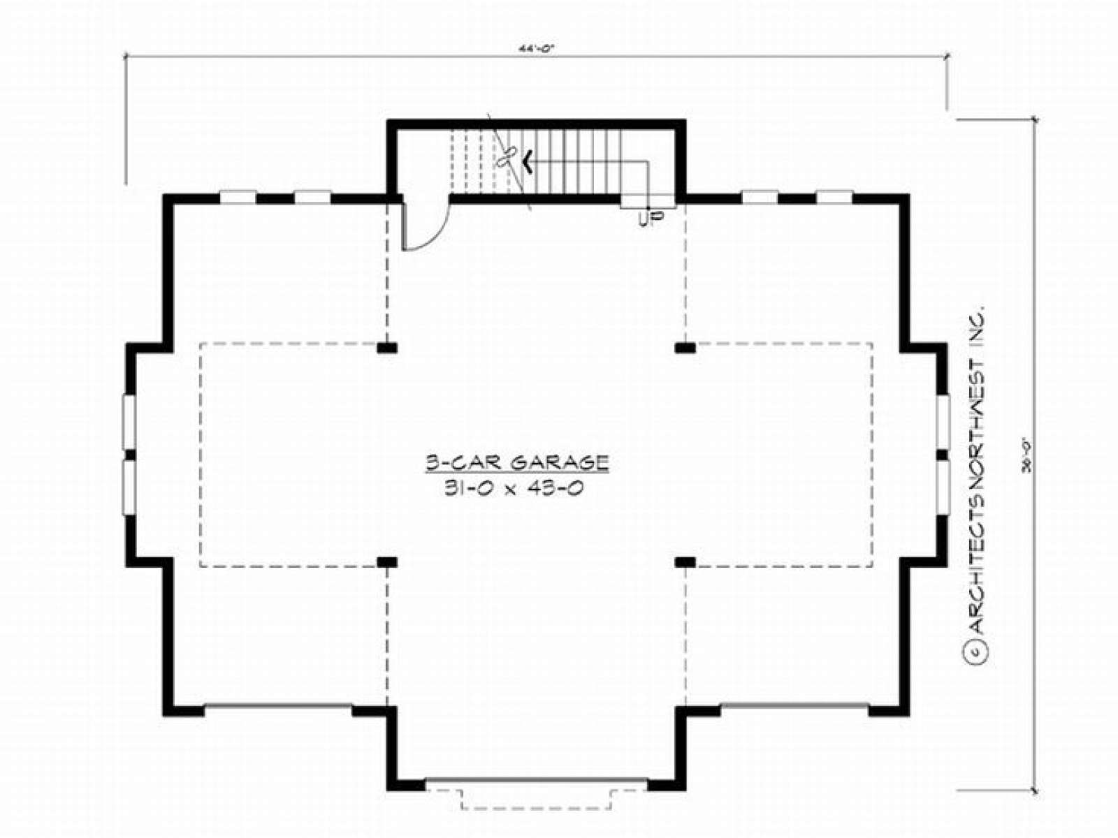
Are you looking for a design with extra parking and extra storage? Consider this detached garage plan with loft! You are sure to love its striking Craftsman look. Thoughtfully planned for the storage of three cars, the 1295 square foot three-car garage is ready to accommodate the family fleet or any other vehicles and items you wish to protect from the elements like an ATV, the kids’ bikes or gardening equipment. Fishermen and boating enthusiasts will be pleased with the center stall. The extra deep garage bay easily accommodates a boat. Plenty of windows fill the interior space with natural light. Interior stairs lead the way to the 760 square foot loft offering countless possibilities. Left unfinished, this space works well for storing family treasures, seasonal items and holiday decorations. If you choose to finish the space it could work well as a playroom for the kids, a craft and hobby area, a home office or even an exercise room. Functional and flexible in a variety of ways, this garage plan with loft and boat storage satisfies a wide range of needs.
| Unheated Square Feet | |
| Garage | 1295 |
| Width | 44 ft. 0 in. |
| Depth | 36 ft. 0 in. |
| Approximate Height | 23 ft. 3 in. |
| Roof Pitch | 8/12 Main |
| Roof Framing |
|
| Foundation Options |
|
| Exterior Wall Options |
|
Are you looking for a design with extra parking and extra storage? Consider this detached garage plan with loft! You are sure to love its striking Craftsman look. Thoughtfully planned for the storage of three cars, the 1295 square foot three-car garage is ready to accommodate the family fleet or any other vehicles and items you wish to protect from the elements like an ATV, the kids’ bikes or gardening equipment. Fishermen and boating enthusiasts will be pleased with the center stall. The extra deep garage bay easily accommodates a boat. Plenty of windows fill the interior space with natural light. Interior stairs lead the way to the 760 square foot loft offering countless possibilities. Left unfinished, this space works well for storing family treasures, seasonal items and holiday decorations. If you choose to finish the space it could work well as a playroom for the kids, a craft and hobby area, a home office or even an exercise room. Functional and flexible in a variety of ways, this garage plan with loft and boat storage satisfies a wide range of needs.
PDF and CAD files are delivered by email, and have no shipping and handling cost.
| Continental US | Canada | AK/HI | *International | |
|---|---|---|---|---|
| Regular 8 - 12 business days | n/a | n/a | n/a | n/a |
| Priority 3 - 4 business days | n/a | n/a | n/a | n/a |
| Express 1 - 2 business days | n/a | n/a | n/a | n/a |
At The Garage Plan Shop (TGPS), we understand there are many reasons our customers build a garage or an accessory structure. Choosing the right design to accommodate your specific needs is one of the first and most important steps of the journey. We offer one of the largest online collections of garage plans, garage apartment plans, shed plans, outbuilding plans, pool houses and other accessory structures designed by North America’s leading residential designers and architects. The plans published on this website are organized into manageable groups making it easy for our customers to find the style or type of plan they need. Additionally, we offer a variety of features and services to enhance your shopping experience, like our Plan Search tool, a Photo Collection, Current Trends, a Favorites feature, and our Modification Service. Our Resource Section is filled with informational articles to guide our customers through the construction of their new garage or accessory building. Finally, TGPS has a reputation for quality customer service. Our experienced staff has been in the stock plan business and serving the public for over 60 years. We are committed to providing excellent service and an exceptional collection of garage plans and other designs as we help our customers take the first steps toward building a new garage or accessory building.
Are you sure you want to perform this action?