There are no reviews
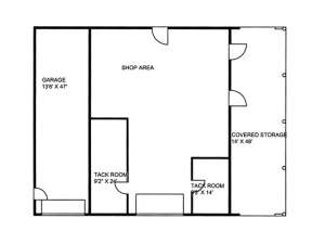
Barn-like styling gives this outbuilding with workshop and storage space the perfect look for a farm. A tandem garage bay and a single garage bay work well for storage of two or three cars or a boat and trailer and one car. Two tack rooms provide plenty of storage for all the necessities and the shop area is large enough to add a work bench. The interior spaces come together offering 2400 square feet of sheltered parking, storage space and work area. Pay attention to the 672 square foot covered storage area and the four handy services doors. Designed to satisfy a variety of needs, this multi-purpose outbuilding is great for everything from car and boat storage to all your farming needs.
| Unheated Square Feet | |
| Carport/Porte Cochere | 672 |
| Outbuilding/Barn | 2400 |
| Width | 64 ft. 0 in. |
| Depth | 48 ft. 0 in. |
| Approximate Height | 23 ft. 8 in. |
| Roof Pitch | 8/12 Main |
| Roof Pitch | 3/12 Other |
| Roof Framing |
|
| Garage Door Size(s) | 11x8 |
| Garage Door Size(s) | 12x10 |
| Foundation Options |
|
| Exterior Wall Options |
|
Barn-like styling gives this outbuilding with workshop and storage space the perfect look for a farm. A tandem garage bay and a single garage bay work well for storage of two or three cars or a boat and trailer and one car. Two tack rooms provide plenty of storage for all the necessities and the shop area is large enough to add a work bench. The interior spaces come together offering 2400 square feet of sheltered parking, storage space and work area. Pay attention to the 672 square foot covered storage area and the four handy services doors. Designed to satisfy a variety of needs, this multi-purpose outbuilding is great for everything from car and boat storage to all your farming needs.
PDF and CAD files are delivered by email, and have no shipping and handling cost.
| Continental US | Canada | AK/HI | *International | |
|---|---|---|---|---|
| Regular 8 - 12 business days | $30 | n/a | n/a | n/a |
| Priority 3 - 4 business days | n/a | n/a | n/a | n/a |
| Express 1 - 2 business days | n/a | n/a | n/a | n/a |
At The Garage Plan Shop (TGPS), we understand there are many reasons our customers build a garage or an accessory structure. Choosing the right design to accommodate your specific needs is one of the first and most important steps of the journey. We offer one of the largest online collections of garage plans, garage apartment plans, shed plans, outbuilding plans, pool houses and other accessory structures designed by North America’s leading residential designers and architects. The plans published on this website are organized into manageable groups making it easy for our customers to find the style or type of plan they need. Additionally, we offer a variety of features and services to enhance your shopping experience, like our Plan Search tool, a Photo Collection, Current Trends, a Favorites feature, and our Modification Service. Our Resource Section is filled with informational articles to guide our customers through the construction of their new garage or accessory building. Finally, TGPS has a reputation for quality customer service. Our experienced staff has been in the stock plan business and serving the public for over 60 years. We are committed to providing excellent service and an exceptional collection of garage plans and other designs as we help our customers take the first steps toward building a new garage or accessory building.
Are you sure you want to perform this action?