Carriage House Plan, 007G-0007

Plan 007G-0007
Reverse All Images
All images are copyrighted by our designers. Photos may reflect modifications made by the builder/homeowner.

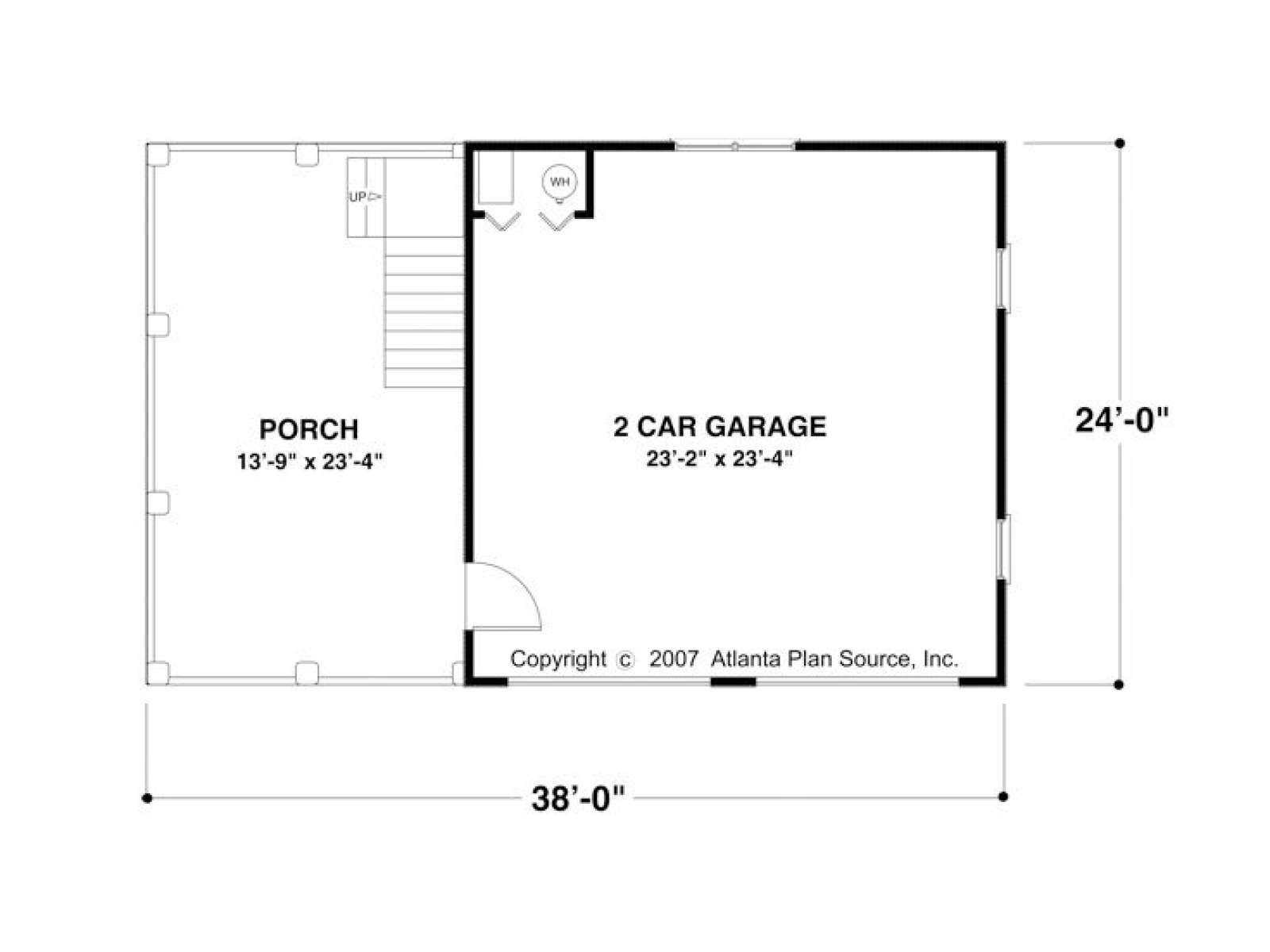
Beaming with country style, this charming carriage house plan does double duty with its two-car garage and living quarters above. With a siding exterior and decorative details, this design is reminiscent of a country barn, perfect next to your home situated along a quiet gravel road. Two carriage style doors open to the double garage while a covered patio is just right for outdoor entertaining or sipping lemonade on a lazy summer afternoon. (An outdoor fireplace and a pond are shown in the rendering to help you plan your recreational space.) Exterior stairs point the way to the second floor apartment. Great for temporary quarters during the construction of your permanent home, an in-law apartment, nanny quarters or a guest suite, the living areas are cozy and comfortable. The open floor plan delivers an eat-in kitchen with walk-in pantry and a spacious family room filled with sunlight. A bedroom and full bath are quite accommodating. Multiple storage closets provide plenty of room for storage of seasonal clothing, linens and other items. A beautiful complement to any home, this two-car garage apartment plan has plenty to offer.

Heated Square Feet
Second Floor 792
Total 792
Unheated Square Feet
Garage 572
Porch(es) 340
Bedrooms 1
Full Bathrooms 1
Width 38 ft. 0 in.
Depth 24 ft. 0 in.
Approximate Height 24 ft. 7 in.
Ceiling Height
First Floor 8 ft. 0 in.
Second Floor 9 ft. 0 in.
Roof Pitch 12/12 Main
Roof Framing
  • Stick
Garage Door Size(s) 9x7 (2)
Foundation Options
  • Monolithic Slab
Exterior Wall Options
  • 2x4
  • 2x6
Kitchen Features
  • Walk-in Pantry
Bedroom Features
  • Walk-in closet
Interior Features
  • Open floor plan
Exterior Features
  • Covered front porch
  • Patio/Terrace/Lanai

Beaming with country style, this charming carriage house plan does double duty with its two-car garage and living quarters above. With a siding exterior and decorative details, this design is reminiscent of a country barn, perfect next to your home situated along a quiet gravel road. Two carriage style doors open to the double garage while a covered patio is just right for outdoor entertaining or sipping lemonade on a lazy summer afternoon. (An outdoor fireplace and a pond are shown in the rendering to help you plan your recreational space.) Exterior stairs point the way to the second floor apartment. Great for temporary quarters during the construction of your permanent home, an in-law apartment, nanny quarters or a guest suite, the living areas are cozy and comfortable. The open floor plan delivers an eat-in kitchen with walk-in pantry and a spacious family room filled with sunlight. A bedroom and full bath are quite accommodating. Multiple storage closets provide plenty of room for storage of seasonal clothing, linens and other items. A beautiful complement to any home, this two-car garage apartment plan has plenty to offer.

Purchased as PDF or CAD file

PDF and CAD files are delivered by email, and have no shipping and handling cost.

Purchased as paper plans
* Scroll right to view table
Continental US Canada AK/HI *International
Regular 8 - 12 business days $25 n/a n/a n/a
Priority 3 - 4 business days $40 n/a n/a n/a
Express 1 - 2 business days $65 n/a n/a n/a
Info

There are no reviews

View more
Add your review

Plan 007G-0007 More Plans by
This Designer

Want to modify this plan?

Please submit your requested changes, and our team will email a free modification quote to you within 1 to 3 business days.

Modify this Plan

Starting at

$1,045.00

Additional Options

Complete copy of the construction drawing. Since our blueprints cannot be photocopied, extra sets Complete copy of the construction drawing. Since our blueprints cannot be photocopied, extra sets are available for purchase within 90 days of the original house plan purchase. [less] [more]

A general listing of the quantities and sizes of materials needed for construction of your project. A general listing of the quantities and sizes of materials needed for construction of your project. This tool aids your builder in the estimating process. A material list cannot be sold without the simultaneous or prior purchase of a plan package of the same plan number. NOTE: Material lists only include materials for the base plan offered with the no charge foundation and wall framing options. The materials for alternate wall framing and foundation options available for an extra charge will not be included in the material list. [less] [more]

One-time surcharge for customers wanting to build the structure in reverse. All sets of construction One-time surcharge for customers wanting to build the structure in reverse. All sets of construction drawings in your plan package will come in full reverse essentially flipping the floor plan from left to right with all text, symbols, and notes reading correctly, rather than mirrored. Your order will be fulfilled in right reading reverse format only. The standard format of the construction drawings will not be included with your order. [less] [more]